重磅!南昌这些地方要拆迁,补偿方案定了!快看有你家吗?
扫描到手机,新闻随时看
扫一扫,用手机看文章
更加方便分享给朋友
原标题:重磅!南昌这些地方要拆迁,补偿方案定了!快看有你家吗?
这些年来
咱们大南昌旧城改造一直在进行
许多老南昌人因此受益
你家有老房子被征迁了吗?

下面掌哥
要给大家说个好消息啦
南昌市今年又有几个地块启动征迁
快来看看是不是你家附近?

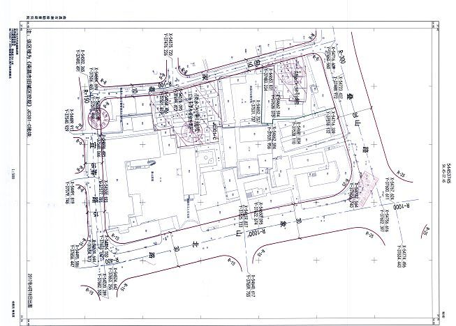
南昌这三个地方启动征
近日,南昌市东湖区公示了东湖周边(阳明路以南三期-包家巷地块、箭道巷地块、后墙路裴家巷地块)旧城(城市棚户区)改造项目房屋征收决定书。房屋就近(异地)产权调换与货币补偿两种方式,由被征收人自行选择。

小伙伴们最关心的来了!
此次旧改地块有哪些?
会不会涉及自己家呢?
别急,小编都帮大家梳理好了!
包家巷地块
征收总户数为94户
征迁情况
包家巷周边地块旧城改造东临工人文化宫,南临建德观街,西临包家巷,北临叠山路,此次征收总户数94户,其中:有产权房40户,直管公房47户,未经登记7户,总建筑面积4750.98㎡。

征收范围
东湖周边(阳明路以南三期-包家巷地块)旧城(城市棚户区)改造项目规划红线范围内。

箭道巷地块
征收总户数为35户
征收情况
箭道巷周边棚户区改造位于箭道巷1-4号、6、7号,登山路425-427号,征收总户数35户,其中:有产权房21户,直管公房12户,未经登记建筑2户,总建筑面积2144.87㎡。

征收范围
东湖周边(阳明路以南三期-箭道巷地块)旧城(城市棚户区)改造项目规划红线范围内。

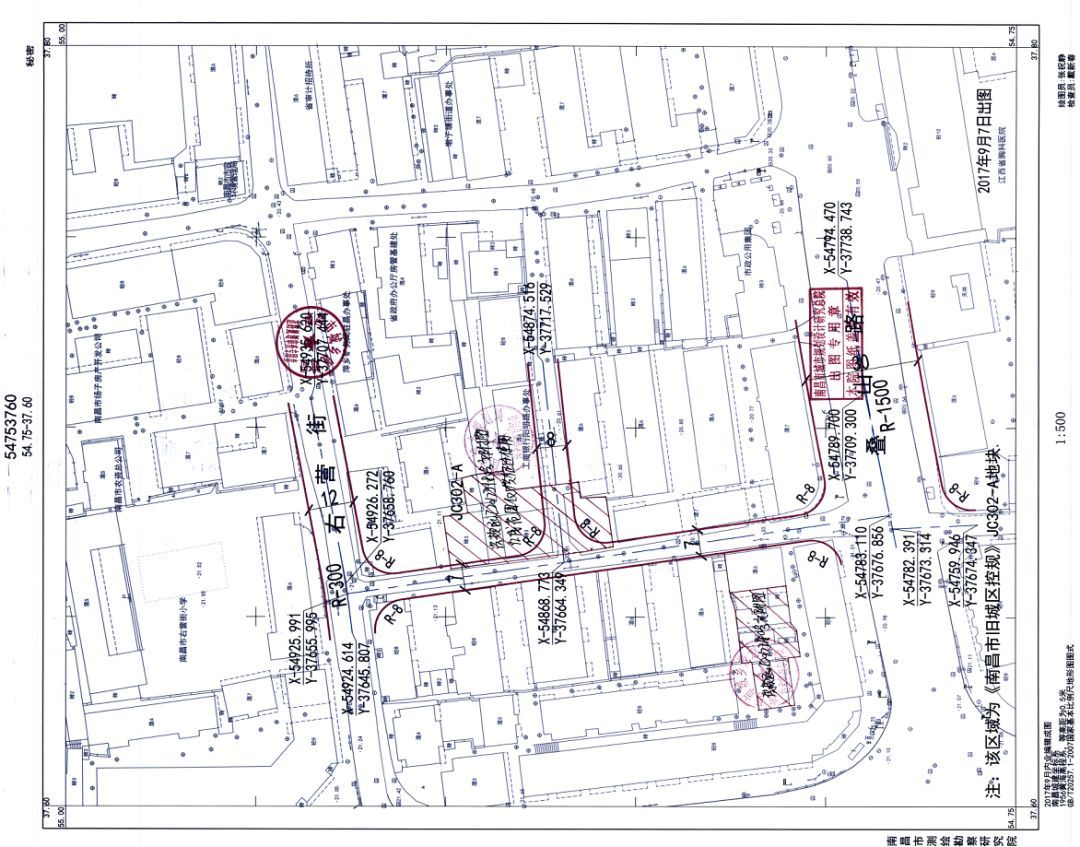
后墙路裴家巷地块
征收总户数为46户
征收情况
后墙路裴家巷棚户区改造位于后墙路田家巷交界处,征收总户数46户,其中:有产权房39户,直管公房6户,未经登记1户,总建筑面积2493.73㎡。

征收范围
东湖周边(阳明路以南三期-后墙路裴家巷地块)旧城(城市棚户区)改造项目规划红线范围内。

征收补偿方案
对被征收人给予被征收房屋价值和因征收房屋造成的搬迁、临时安置、停产停业损失等补偿,按本方案相应规定给予补助和奖励。
被征收房屋价值和用于产权调换房屋价值按房屋征收决定公告之日类似房地产的市场价格计算。被征收房屋的价值和用于产权调换房屋的价值由具有相应资质的房地产价格评估机构评估确定。
对常住户口被征收人住宅房屋建筑面积小于36㎡且在本市城区内仅此一处住房的,补齐36㎡房屋进行安置补偿;在下达征收决定前两年内(含两年),因转移登记导致被征收房屋建筑面积小于36㎡的,无论选择何种补偿方式均不享受补齐建筑面积36㎡安置补偿;因认定“住改非”而导致被征收住宅房屋建筑面积小于36㎡的,不享受补齐建筑面积36㎡安置补偿。
征收私房住宅补偿
(1)补偿方式:实行房屋就近(异地)产权调换与货币补偿两种方式,由被征收人自行选择。
(2)选择货币的补偿:按市场评估价补偿,即签即办。
(3)选择产权调换的补偿:实行就近和异地产权调换两种方式。东湖区行政区划内,安置房屋与被征收房屋为同级房屋地段的,可视为就近地段。

B、实行异地产权调换:
按照“用地段区位换面积”的办法进行优惠安置,被征收人可以按建筑面积增加建筑面积的优惠,具体增加幅度如下:

按照被征收房屋建筑面积1:1.4在九龙湖安置小区实行异地产权调换,根据安置房源的具体情况采用组合成总建筑面积相近的安置房户型。安置房总建筑面积超出5㎡(含)以内部分按市场优惠价格(按市场价格的70%)结算;安置房总建筑面积超出5㎡以上部分按安置房市场价格结算。
(4)确定选择产权调换的被征收人,应在规定的搬迁期限内搬迁交房并领取搬迁交房序号,按照“先搬先选”的原则,在相同户型内根据搬迁交房的时间按顺序选择安置房。
(5)安置房地点:
A、就近产权调换地点:上沙窝地块安置房小区
B、异地产权调换地点:红谷滩九龙湖安置小区;
C、户型(面积):详见户型平面图。
D、户型根据实际安置情况,以市城乡规划局审核为准;实际安置面积以房屋登记部门发证测量为准。

(6)过渡期限:
A、多层建筑安置小区不超过24个月,高层建筑安置小区、多层与高层混合安置小区不超过36个月;过渡期从搬迁交房之日起计算。
B、产权调换安置房到期未交付的,自逾期之日起按原标准1.5倍支付临时安置费;逾期超过12个月的,从超过之日起按原标准2倍支付临时安置费。
装饰装修补偿
由征收当事人协商确定;协商不成的,可以委托房地产价格评估机构通过评估确定。
搬迁补偿
户建筑面积100平方米以内的每户每次500元;户建筑面积超过100㎡的,每户每次500元另加超出部分3元/㎡。
临时安置补偿
选择产权调换的,在规定或约定的临时安置期限内,按建筑面积13.5元/㎡•月结算;户结算后少于600元/月的,按600元/月结算,以完成搬迁交房之日起计发。
选择货币补偿的,一次性按被征收房屋建筑面积13.5元/㎡.月发放6个月临时安置补助费;户结算后少于600元/月的,按600元/月发放6个月临时安置补助费。
补助及奖励
选择货币补偿的补助和奖励
被征收人在补偿签约期限内签约并在搬迁期限内完成搬迁交房的,另按被征收房屋市场评估价的20%给予补助。
提前签约奖
为鼓励被征收人提前签订征收补偿协议并搬迁,对在2019年 1月9日(含)前签约并完成搬迁交房的被征收人按以下方法给予奖励:每提前一天签约并完成搬迁交房的按每户每日300元奖励,较高奖励每户不超过12000元,即2018年11月30日(含)前搬迁交房。
税费减免
根据财政部、国家税务总局的有关规定,被征收人取得的货币补偿款免征个人所得税;重新购置住房的,对购房成交价中相当于货币补偿款的部分免征契税,免征部分契税时间自下发征收决定之日起1年内购买住宅房屋的有效。
棚改是惠及千家万户的
安居工程、民心工程
城镇化建设进一步提质升级
缔造你我的美好家园
希望符合征迁条件的你
早日乔迁新居
赶紧把这个好消息告诉你家人
来源:江南都市报、南昌市东湖区人民政府官网返回搜狐,查看更多
责任编辑:
声明:本文由入驻焦点开放平台的作者撰写,除焦点官方账号外,观点仅代表作者本人,不代表焦点立场。
